Off plan vrijstaande luxueuze villa (O.B.)
-
LocatieBenahavís - Málaga
-
Prijs2,995,000 €
-
ReferentieVilla 357
-
Bed5
-
Bad6
-
Toilet1
-
ZwembadJa
-
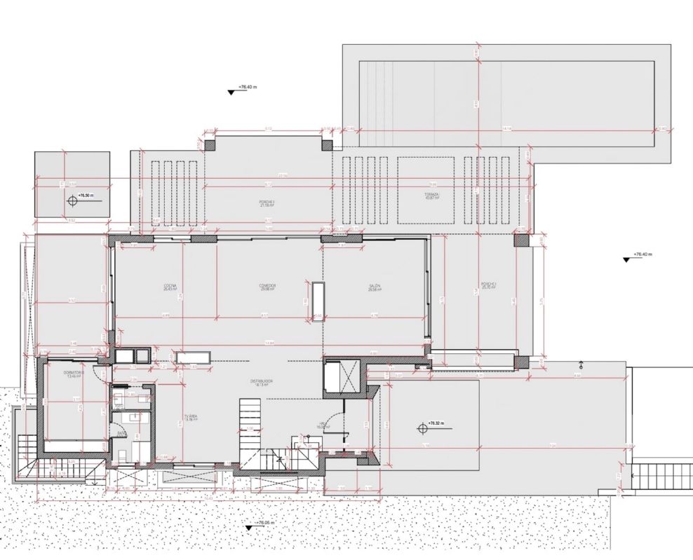
Bebouwde oppervlakte591 m2
-
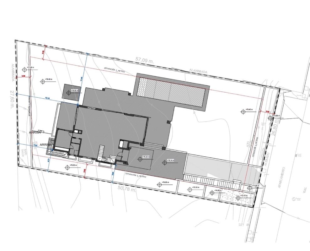
Perceelgrootte4.000 m2
-
Terras oppervlakte254 m2
OFF-PLAN hedendaagse, ecologische villa in het prestigieuze resort Marbella Club Golf, Benahavis wit gedeeltelijk zeezicht
De woning bestaat uit; begane grond, hal met trap, TV hoek, enorme woon/eetkamer, volledig uitgeruste en ingerichte keuken van Porcelanosa, apart gastentoilet en een slaapkamer met ensuite badkamer.
Op de eerste verdieping heb je nog eens 5 slaapkamers met elk een eigen badkamer, de hoofdslaapkamer en 2 andere slaapkamers hebben een eigen terras.
Er is een onderhoudsvriendelijke tuin met een verwarmd privézwembad en chill-out.
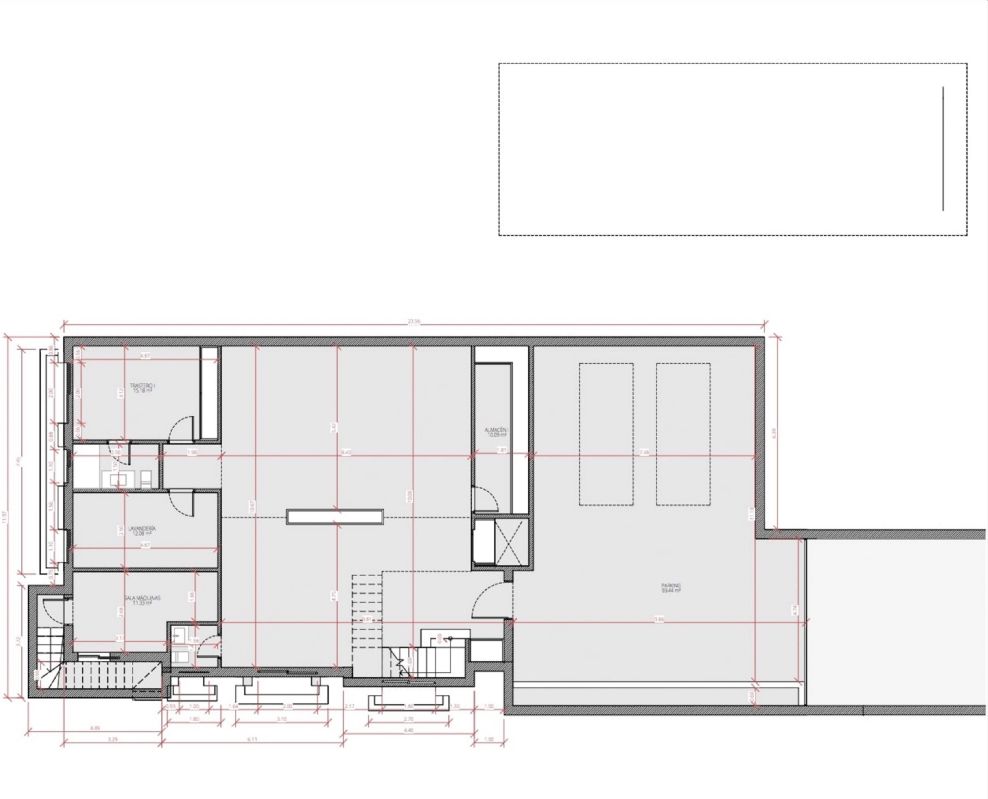
In de kelder is een garage voor minimaal 3 auto's, bergruimtes, een technische ruimte en een bijkeuken.
Bouwtijd 14 tot 16 maanden.
Foto's van keuken en badkamers zijn alleen ter illustratie, de uiteindelijke beslissing ligt bij de klant.
Voorbeeld van enkele specificaties,
- Vloertegels voor binnen en buiten van SALONI - GRESPANIA of LIVING CERAMICS
- Badkamerwanden met COVERLAM platen (GRESPANIA) 2700X1200
- Badkamers van ROCA - GEBERIT of VILLEROY BOCH
- Aerothermie/airconditioning
- Lift van Schindler of gelijkwaardig
- Hydraulische vloerverwarming in gehele villa
- Elektrische vloerverwarming in de badkamers
- Plafondhoge ramen met een verzonken rail van REYNAERS of gelijkwaardig, 5+5/kamer/4+4
- Draaibare toegangsdeur plafondhoog en 1,50 breed
- Plafondhoge en 1 meter brede binnendeuren
- Volledig ingerichte keuken met deuren in aluminium frame en bedekt met COVERLAM
- Eiland met COVERLAM zonder zichtbare voegen
- Witgoed van Bosch of AEG
- Elektriciteitsarmaturen van NIESSEN of BTICINO
- Verwarmd overloopzwembad met automatische afdekking
- 24 voltaïsche panelen
- 2 lithium batterijen van elk 10kW
- Lader voor auto
- Huis automatizering
De woning bestaat uit; begane grond, hal met trap, TV hoek, enorme woon/eetkamer, volledig uitgeruste en ingerichte keuken van Porcelanosa, apart gastentoilet en een slaapkamer met ensuite badkamer.
Op de eerste verdieping heb je nog eens 5 slaapkamers met elk een eigen badkamer, de hoofdslaapkamer en 2 andere slaapkamers hebben een eigen terras.
Er is een onderhoudsvriendelijke tuin met een verwarmd privézwembad en chill-out.
In de kelder is een garage voor minimaal 3 auto's, bergruimtes, een technische ruimte en een bijkeuken.
Bouwtijd 14 tot 16 maanden.
Foto's van keuken en badkamers zijn alleen ter illustratie, de uiteindelijke beslissing ligt bij de klant.
Voorbeeld van enkele specificaties,
- Vloertegels voor binnen en buiten van SALONI - GRESPANIA of LIVING CERAMICS
- Badkamerwanden met COVERLAM platen (GRESPANIA) 2700X1200
- Badkamers van ROCA - GEBERIT of VILLEROY BOCH
- Aerothermie/airconditioning
- Lift van Schindler of gelijkwaardig
- Hydraulische vloerverwarming in gehele villa
- Elektrische vloerverwarming in de badkamers
- Plafondhoge ramen met een verzonken rail van REYNAERS of gelijkwaardig, 5+5/kamer/4+4
- Draaibare toegangsdeur plafondhoog en 1,50 breed
- Plafondhoge en 1 meter brede binnendeuren
- Volledig ingerichte keuken met deuren in aluminium frame en bedekt met COVERLAM
- Eiland met COVERLAM zonder zichtbare voegen
- Witgoed van Bosch of AEG
- Elektriciteitsarmaturen van NIESSEN of BTICINO
- Verwarmd overloopzwembad met automatische afdekking
- 24 voltaïsche panelen
- 2 lithium batterijen van elk 10kW
- Lader voor auto
- Huis automatizering
Specificaties
- Investeringseigendom
- Eerste lijn golf eigendom
- Terras
- Overdekt terras
- Solarium
- Lift
- Ingebouwde kleerkasten
- Inloopkast (Dressing)
- Badkamer en-suite
- Opslagruimte
- Kelder
- Dubbele beglazing
- Barbecue zone
- Fitnessruimte
- Games kamer
- Toegang voor mindervaliden
Stijl
- Modern
- Hedendaags
- Luxueus
- Minimalistisch
- Industrieel
- Design
Meubilair
- Ongemeubileerd
Keuken
- Volledig ingerichte keuken
Klimaatregeling
- Airconditioning warm
- Airconditioning koud
- Vloerverwarming
- Zonnepanelen
- Open haard
Tuin
- Privé tuin
- Onderhoudsvriendelijke tuin
- Automatisch irrigatiesysteem
- Sinaasappelbomen
- Bananenbomen
- Citroenbomen
- Fruitbomen
Zwembad
- Prive verwarmd zwembad
- Jacuzzi
Parkeren
- Garage met automatische poort
- Ondergronds parkeren
- Overdekt parkeren
- Openlucht parkeren
- Privé parkeerplaats
- Meerdere parkeerplaatsen
Veiligheid
- Bewakingscameras
- 24 uurs beveiliging
- Alarmsysteem
- Kluis
- Deurtelefoon met video
Nutsvoorzieningen
- Elektriciteit
- Drinkbaar water
- Telefoon
- Internet
- Glasvezel (internet)
Oriëntatie
- Zuidoost
- Zuid
- Zuidwest
- West
Dichtbij
- Dichtbij golf
- Dichtbij restaurants
Uitzicht
- Uitzicht op zee
- Uitzicht op binnenland
- Golf uitzicht
- Panoramisch uitzicht
- Uitzicht op de tuin
- Uitzicht op het zwembad



























