Off plan vrijstaande luxueuze villa (O.B.)
-
LocatieSotogrande - Cádiz
-
Prijs3,595,000 €
-
ReferentieVilla 022
-
Bed6
-
Bad6
-
Toilet1
-
ZwembadJa
-
Bebouwde oppervlakte650 m2
-
Perceelgrootte3.000 m2
-
Terras oppervlakte432 m2
ECOLOGISCHE PASSIEVE VILLA IN SOTOGRANDE MET UITZICHT OP ZEE
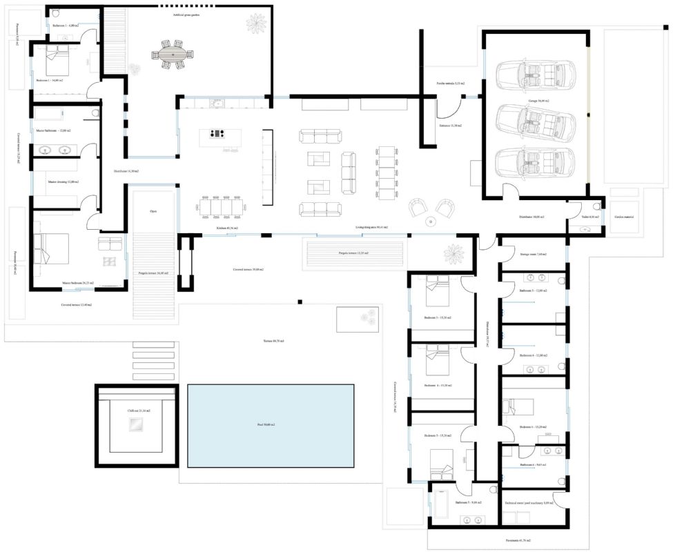
Deze woning zal worden gebouwd op 1 verdieping met de hoogst mogelijke specificaties en bestaande uit;
Entree, hal met garderobe, enorme woon / eetkamer gescheiden met keuken kasten maar nog steeds gedeeltelijk open. Via een verdeler ga je naar de hoofdslaapkamer met ensuite badkamer en dressing. In dit deel van de villa is ook nog een slaapkamer met badkamer ensuite.
De volledig ingerichte keuken met alle apparatuur geeft uit op een ommuurde binnenplaats met een pergola terras.
Aan de andere kant van de villa hebben we een verdeler met gastentoilet, een enorme garage, berging, nog een verdeler met 2 slaapkamers met 2 badkamers en nog 2 slaapkamers met badkamer ensuite.
Verder zijn er verschillende overdekte terrassen, pergola terrassen en een terras met een chill-out, verwarmd zwembad en een open tuinberging.
De foto's van de badkamers en de keuken zijn slechts voorbeelden. De uiteindelijke keuze van de afwerking is aan de klant binnen de gekozen lijn die wij voorstellen.
Voorbeeld van enkele specificaties,
- Vloertegels voor binnen en buiten van GRESPANIA - SALONI of LIVING CERAMICS (kleur en formaat naar keuze)
- Badkamerwanden met COVERLAM of LIVING CERAMICS platen 2700X1200 (kleur te kiezen)
- Badkamers van ROCA - DURAVIT - VILLEROY BOCH - GEBERIT - HANSGROHE OF SIMILAR
- Aerothermie/airconditioning
- Elektrische vloerverwarming in de badkamers
- Hydraulische vloerverwarming in de woonkamer en slaapkamers
- Plafondhoge ramen van REYNAERS of gelijkwaardig met een verzonken rail, Planistar glas van 5+5/kamer/4+4
- Plafondhoge taatsdeur van 1,50 breed
- Plafondhoge en 1 meter brede binnendeuren
- Volledig ingerichte keuken met deuren in aluminium frame en bedekt met COVERLAM (kleur naar keuze)
- Eiland met COVERLAM, geen zichtbare voegen (Kleur te kiezen)
- Witgoed van Bosch of AEG
- Verwarmd zwembad
- 24 voltaïsche panelen
- 2 lithium batterijen van elk 10kW
- Autolader
Deze woning zal worden gebouwd op 1 verdieping met de hoogst mogelijke specificaties en bestaande uit;
Entree, hal met garderobe, enorme woon / eetkamer gescheiden met keuken kasten maar nog steeds gedeeltelijk open. Via een verdeler ga je naar de hoofdslaapkamer met ensuite badkamer en dressing. In dit deel van de villa is ook nog een slaapkamer met badkamer ensuite.
De volledig ingerichte keuken met alle apparatuur geeft uit op een ommuurde binnenplaats met een pergola terras.
Aan de andere kant van de villa hebben we een verdeler met gastentoilet, een enorme garage, berging, nog een verdeler met 2 slaapkamers met 2 badkamers en nog 2 slaapkamers met badkamer ensuite.
Verder zijn er verschillende overdekte terrassen, pergola terrassen en een terras met een chill-out, verwarmd zwembad en een open tuinberging.
De foto's van de badkamers en de keuken zijn slechts voorbeelden. De uiteindelijke keuze van de afwerking is aan de klant binnen de gekozen lijn die wij voorstellen.
Voorbeeld van enkele specificaties,
- Vloertegels voor binnen en buiten van GRESPANIA - SALONI of LIVING CERAMICS (kleur en formaat naar keuze)
- Badkamerwanden met COVERLAM of LIVING CERAMICS platen 2700X1200 (kleur te kiezen)
- Badkamers van ROCA - DURAVIT - VILLEROY BOCH - GEBERIT - HANSGROHE OF SIMILAR
- Aerothermie/airconditioning
- Elektrische vloerverwarming in de badkamers
- Hydraulische vloerverwarming in de woonkamer en slaapkamers
- Plafondhoge ramen van REYNAERS of gelijkwaardig met een verzonken rail, Planistar glas van 5+5/kamer/4+4
- Plafondhoge taatsdeur van 1,50 breed
- Plafondhoge en 1 meter brede binnendeuren
- Volledig ingerichte keuken met deuren in aluminium frame en bedekt met COVERLAM (kleur naar keuze)
- Eiland met COVERLAM, geen zichtbare voegen (Kleur te kiezen)
- Witgoed van Bosch of AEG
- Verwarmd zwembad
- 24 voltaïsche panelen
- 2 lithium batterijen van elk 10kW
- Autolader
Specificaties
- Investeringseigendom
- Eerste lijn golf eigendom
- Terras
- Overdekt terras
- Ingebouwde kleerkasten
- Inloopkast (Dressing)
- Badkamer en-suite
- Opslagruimte
- Wasruimte
- Dubbele beglazing
- Domotica
- Barbecue zone
- Toegang voor mindervaliden
Stijl
- Modern
- Hedendaags
- Luxueus
- Minimalistisch
- Industrieel
- Design
Keuken
- Volledig ingerichte keuken
Klimaatregeling
- Airconditioning warm
- Airconditioning koud
- Vloerverwarming
- Zonnepanelen
Tuin
- Automatisch irrigatiesysteem
- Sinaasappelbomen
- Bananenbomen
- Citroenbomen
- Fruitbomen
Zwembad
- Prive verwarmd zwembad
- Jacuzzi
Parkeren
- Garage met automatische poort
- Overdekt parkeren
- Openlucht parkeren
- Privé parkeerplaats
- Meerdere parkeerplaatsen
Veiligheid
- Omheind complex met automatische poort
- 24 uurs beveiliging
- Alarmsysteem
- Kluis
- Deurtelefoon met video
Nutsvoorzieningen
- Elektriciteit
- Drinkbaar water
- Telefoon
- Internet
- Glasvezel (internet)
Oriëntatie
- Zuidoost
- Zuid
- Zuidwest
- West
Dichtbij
- Dichtbij golf
- Dichtbij scholen
Uitzicht
- Uitzicht op zee
- Uitzicht op de bergen
- Uitzicht op binnenland
- Panoramisch uitzicht
- Uitzicht op de tuin
- Uitzicht op het zwembad





















