Off plan hedendaagse villa
-
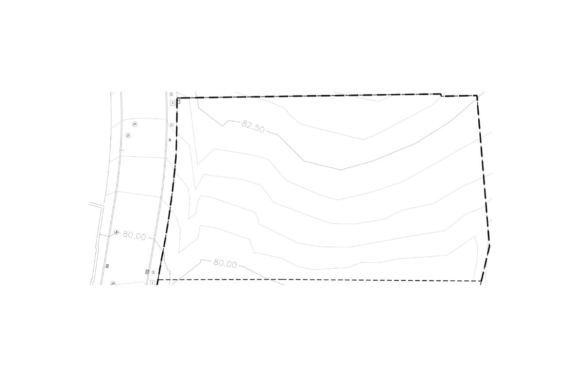
LocatieEstepona - Málaga
-
Prijs1,795,000 €
-
ReferentieVilla 31
-
Bed4
-
Bad4
-
Toilet1
-
ZwembadJa
-
Bebouwde oppervlakte452 m2
-
Perceelgrootte1.074 m2
-
Terras oppervlakte322 m2
OFF-PLAN ECOLOGISCHE CONTEMPORARY VILLA in Valle Romano, Estepona, vergunningen goedgekeurd.
Deze luxe villa zal constant uit:
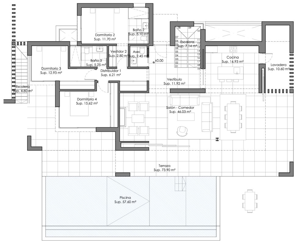
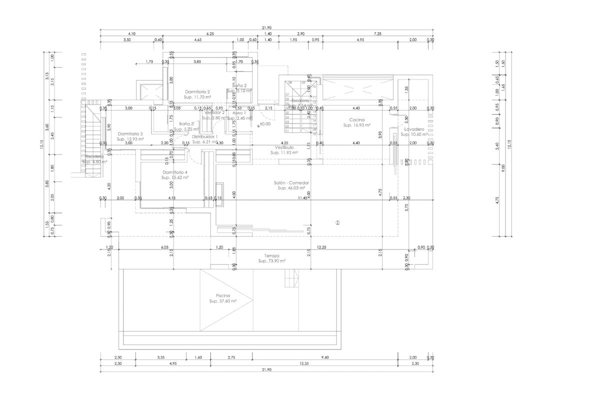
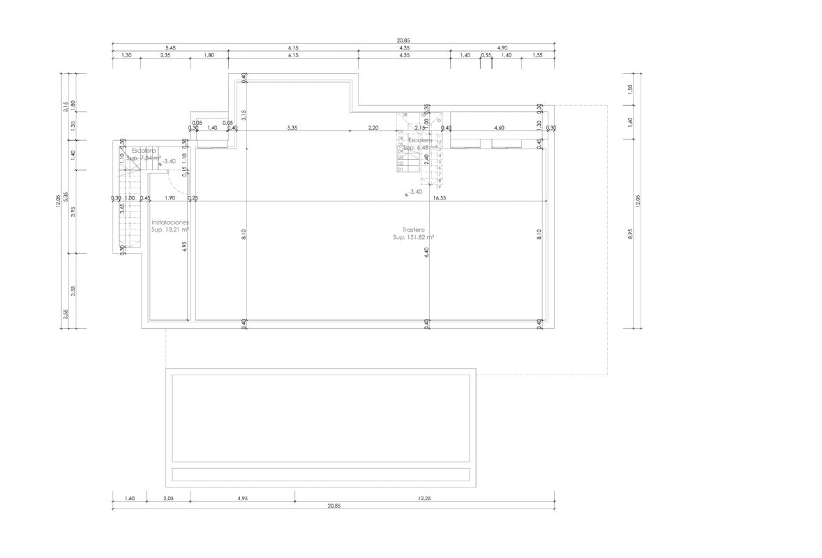
Begane grond: hal met gastentoilet en trap, woon / eetkamer met open keuken volledig uitgerust met apparatuur van Bosch of AEG, wasruimte, verdeler met een dressing, 1 slaapkamer met badkamer ensuite, en 2 andere slaapkamers die een badkamer delen, terrassen en enorm zwembad van 57,60 m2, pergola carport, en oprit.
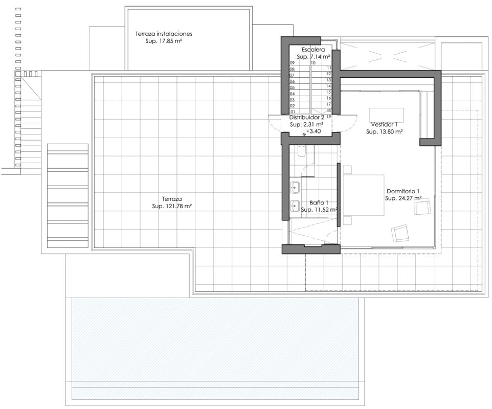
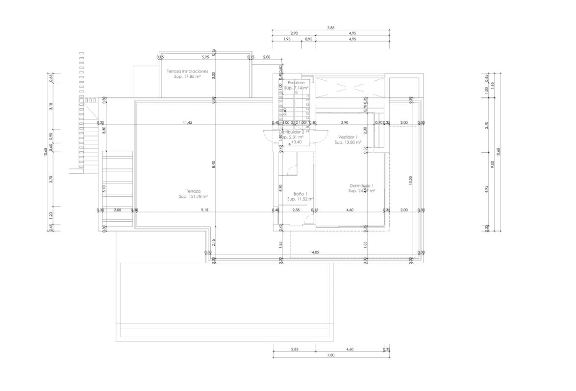
Eerste verdieping: Hoofdslaapkamer met badkamer ensuite, dressing en ruime terrassen.
Kelder: opslagruimte, speelkamer, sauna, badkamer, technische ruimte
- Een luchtdichte gebouwschil
- Ontwerp en constructie zonder koudebruggen
- Ventilatie met zeer efficiënte warmte- of energieterugwinning
- Uitzonderlijk hoge isolatieniveaus
- Goed geïsoleerde raamkozijnen en beglazingVoorbeeld van enkele specificaties,
- Interieur en exterieur vloertegels van GRESPANIA 1200x1200
- Badkamerwanden met COVERLAM platen (GRESPANIA) 2700X1200
- Badkamers van ROCA serie THE GAP
- Aerothermie/airconditioning
- Lift
- Vloerverwarming in de gehele villa
- Plafondhoge ramen met een verdiepte baan, 5+5/kamer/6+6
- Plafondhoge en 1 meter brede HPL deuren, 30dB
- Volledig ingerichte keuken met deuren in aluminium frame en bedekt met COVERLAM
- Eiland met COVERLAM 3600X1600 geen zichtbare voegen
- Witgoed van Bosch, AEG of Miele
- Verwarmd zwembad met automatische afdekking
- 20 zonnepanelen met 2 lithium batterijen van elk 10kW
- Autolader
- Domotica
Deze luxe villa zal constant uit:
Begane grond: hal met gastentoilet en trap, woon / eetkamer met open keuken volledig uitgerust met apparatuur van Bosch of AEG, wasruimte, verdeler met een dressing, 1 slaapkamer met badkamer ensuite, en 2 andere slaapkamers die een badkamer delen, terrassen en enorm zwembad van 57,60 m2, pergola carport, en oprit.
Eerste verdieping: Hoofdslaapkamer met badkamer ensuite, dressing en ruime terrassen.
Kelder: opslagruimte, speelkamer, sauna, badkamer, technische ruimte
- Een luchtdichte gebouwschil
- Ontwerp en constructie zonder koudebruggen
- Ventilatie met zeer efficiënte warmte- of energieterugwinning
- Uitzonderlijk hoge isolatieniveaus
- Goed geïsoleerde raamkozijnen en beglazingVoorbeeld van enkele specificaties,
- Interieur en exterieur vloertegels van GRESPANIA 1200x1200
- Badkamerwanden met COVERLAM platen (GRESPANIA) 2700X1200
- Badkamers van ROCA serie THE GAP
- Aerothermie/airconditioning
- Lift
- Vloerverwarming in de gehele villa
- Plafondhoge ramen met een verdiepte baan, 5+5/kamer/6+6
- Plafondhoge en 1 meter brede HPL deuren, 30dB
- Volledig ingerichte keuken met deuren in aluminium frame en bedekt met COVERLAM
- Eiland met COVERLAM 3600X1600 geen zichtbare voegen
- Witgoed van Bosch, AEG of Miele
- Verwarmd zwembad met automatische afdekking
- 20 zonnepanelen met 2 lithium batterijen van elk 10kW
- Autolader
- Domotica
Specificaties
- Eerste lijn golf eigendom
- Terras
- Overdekt terras
- Solarium
- Ingebouwde kleerkasten
- Inloopkast (Dressing)
- Badkamer en-suite
- Opslagruimte
- Wasruimte
- Kelder
- Dubbele beglazing
- Domotica
- Sauna
- Toegang voor mindervaliden
Stijl
- Modern
- Hedendaags
- Luxueus
- Minimalistisch
- Industrieel
- Design
Meubilair
- Ongemeubileerd
Keuken
- Volledig ingerichte keuken
- Open keuken
Klimaatregeling
- Airconditioning warm
- Airconditioning koud
- Vloerverwarming
- Zonnepanelen
- Warmtepomp
Tuin
- Onderhoudsvriendelijke tuin
- Automatisch irrigatiesysteem
- Fruitbomen
Zwembad
- Prive verwarmd zwembad
Parkeren
- Overdekt parkeren
- Privé parkeerplaats
- Meerdere parkeerplaatsen
Veiligheid
- Bewakingscameras
- Alarmsysteem
- Kluis
- Deurtelefoon met video
Nutsvoorzieningen
- Elektriciteit
- Drinkbaar water
- Telefoon
- Internet
- Glasvezel (internet)
Oriëntatie
- Zuid
- Zuidwest
Dichtbij
- Dichtbij zee
- Dichtbij strand
- Dichtbij stad
- Dichtbij dorp
- Dichtbij haven
- Dichtbij jachthaven
- Dichtbij golf
- Dichtbij scholen
- Dichtbij winkels
- Dichtbij cafés
- Dichtbij restaurants
Uitzicht
- Uitzicht op zee
- Uitzicht op de bergen
- Uitzicht op binnenland
- Golf uitzicht
- Panoramisch uitzicht
- Uitzicht op de tuin
- Uitzicht op het zwembad

























