Vrijstaande luxueuze villa (O.B.)
-
LocatieSan Roque - Cádiz
-
Prijs3,795,000 €
-
ReferentieVilla 005
-
Bed5
-
Bad5
-
Toilet1
-
ZwembadJa
-
Bebouwde oppervlakte615 m2
-
Perceelgrootte2.295 m2
-
Terras oppervlakte258 m2
OFF-PLAN KEY-IN-HAND LUXE ECOLOGISCHE CONTEMPORARY VILLA met golf en zeezicht in de prestigieuze urbanisatie La Reserva de Sotogrande, op een steenworp afstand van Valderrama.
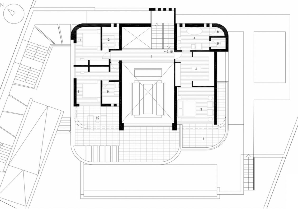
Deze woning bestaat uit:
Begane grond; hal met trap en gang, gastentoilet, bijkeuken/wasruimte, volledig ingerichte op maat gemaakte keuken met witgoed van BOSCH, eet/woonkamer, slaapkamer met en-suite badkamer, 2 overdekte terrassen, pergola terras, en infinity zwembad.
Eerste verdieping: gang, hoofdslaapkamer met en-suite badkamer en kleedkamer, verder 2 slaapkamers met elk hun badkamer, en 2 terrassen
Kelder; garage voor 2 auto's, installatieruimte, berging, waterval machinekamer, hal met trap, woonkamer, biljartkamer, zelfstandig appartement, slaapkamer met en-suite badkamer, bioscoopkamer, biljartkamer, en een Zen patio.
Binnen- en buitenvloeren en badkamer muren van SALONI, buitendraaiende deur van Porteline plafondhoog en 1,50 breed, onzichtbare binnendeuren plafondhoog en 1,00 m breed, apparaten van BOSCH.
Deze woning bestaat uit:
Begane grond; hal met trap en gang, gastentoilet, bijkeuken/wasruimte, volledig ingerichte op maat gemaakte keuken met witgoed van BOSCH, eet/woonkamer, slaapkamer met en-suite badkamer, 2 overdekte terrassen, pergola terras, en infinity zwembad.
Eerste verdieping: gang, hoofdslaapkamer met en-suite badkamer en kleedkamer, verder 2 slaapkamers met elk hun badkamer, en 2 terrassen
Kelder; garage voor 2 auto's, installatieruimte, berging, waterval machinekamer, hal met trap, woonkamer, biljartkamer, zelfstandig appartement, slaapkamer met en-suite badkamer, bioscoopkamer, biljartkamer, en een Zen patio.
Binnen- en buitenvloeren en badkamer muren van SALONI, buitendraaiende deur van Porteline plafondhoog en 1,50 breed, onzichtbare binnendeuren plafondhoog en 1,00 m breed, apparaten van BOSCH.
Specificaties
- Verlaagde prijs
- Terras
- Overdekt terras
- Solarium
- Ingebouwde kleerkasten
- Inloopkast (Dressing)
- Badkamer en-suite
- Opslagruimte
- Wasruimte
- Kelder
- Dubbele beglazing
- Toegang voor mindervaliden
Stijl
- Modern
- Hedendaags
- Luxueus
- Industrieel
- Design
Meubilair
- Ongemeubileerd
Keuken
- Volledig ingerichte keuken
Klimaatregeling
- Airconditioning warm
- Airconditioning koud
- Vloerverwarming
- Zonnepanelen
- Warmtepomp
- Open haard
Tuin
- Privé tuin
- Onderhoudsvriendelijke tuin
- Automatisch irrigatiesysteem
- Fruitbomen
Zwembad
- Prive verwarmd infinity zwembad
Parkeren
- Garage
- Garage met automatische poort
- Ondergronds parkeren
- Overdekt parkeren
- Openlucht parkeren
- Privé parkeerplaats
- Meerdere parkeerplaatsen
- Parkeren op straat
Veiligheid
- Omheind complex met automatische poort
- Bewakingscameras
- 24 uurs beveiliging
- Alarmsysteem
- Kluis
- Deurtelefoon met video
Nutsvoorzieningen
- Elektriciteit
- Drinkbaar water
- Telefoon
- Internet
- Glasvezel (internet)
Oriëntatie
- Zuid
- Zuidwest
Dichtbij
- Dichtbij zee
- Dichtbij strand
- Dichtbij haven
- Dichtbij golf
- Dichtbij scholen
- Dichtbij winkels
- Dichtbij restaurants
Uitzicht
- Uitzicht op zee
- Uitzicht op de bergen
- Golf uitzicht
- Panoramisch uitzicht
- Uitzicht op de tuin
- Uitzicht op het zwembad











