Vrijstaande villa (O.B.)
-
LocatieSotogrande - Cádiz
-
Prijs3,495,000 €
-
ReferentieVilla 383
-
Bed5
-
Bad5
-
Toilet2
-
ZwembadJa
-
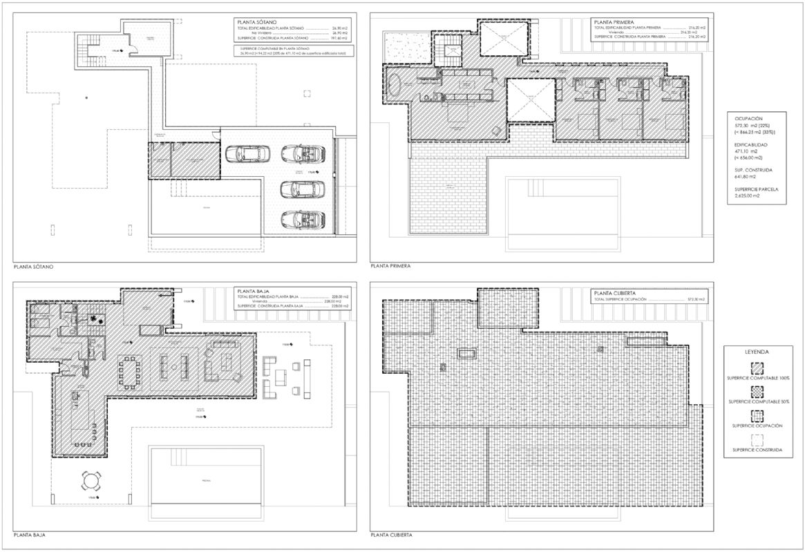
Bebouwde oppervlakte642 m2
-
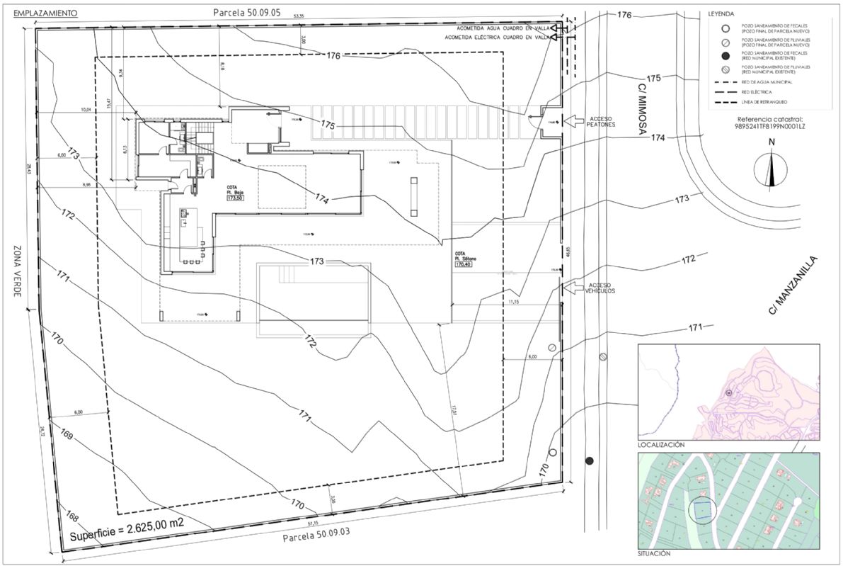
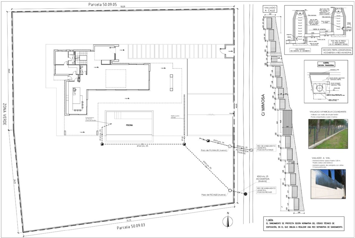
Perceelgrootte2.625 m2
-
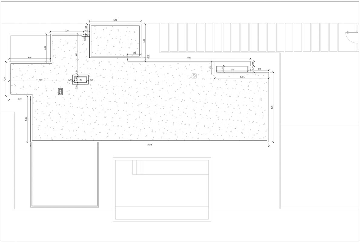
Terras oppervlakte320 m2
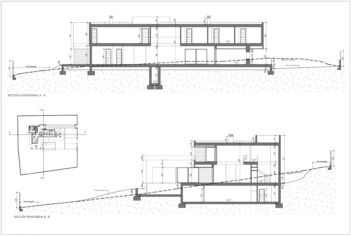
OFF-PLAN LUXE ECOLOGISCHE CONTEMPORARY VILLA - KEY-IN-HAND - in de prestigieuze urbanisatie van La Reserva, Sotogrande Alto met prachtig uitzicht op zee en golf en alle uitstekende faciliteiten van Valderrama binnen handbereik. Dit uitzicht op zee en golf kan en zal nooit worden belemmerd door andere villa's als gevolg van de hoogte van het perceel! Deze eigentijdse luxe ecologische villa heeft gewoon alles ... het zal worden gebouwd in 3 verdiepingen op een perceel van 2.625 m2 in luxe urbanisatie in een zeer groene omgeving.
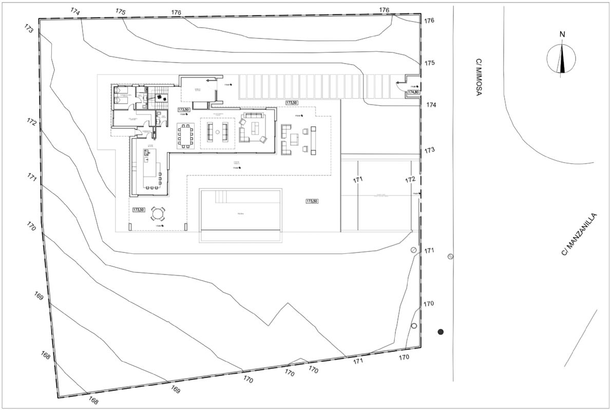
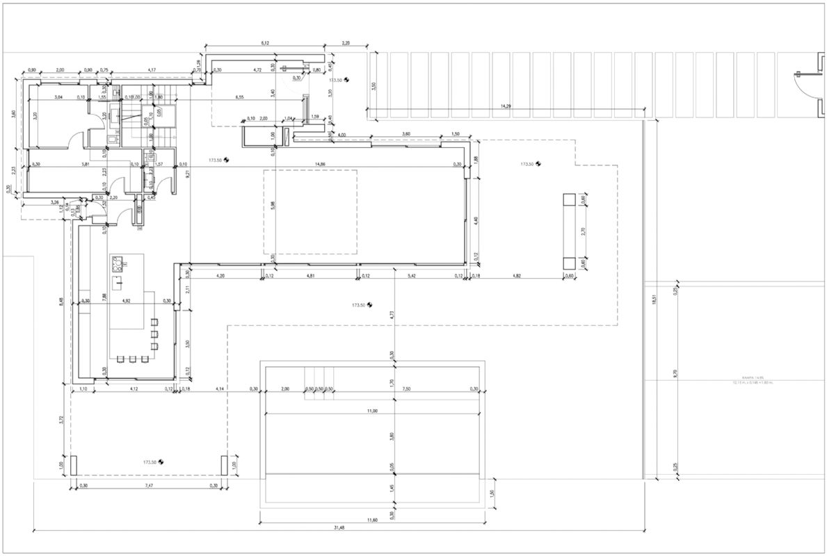
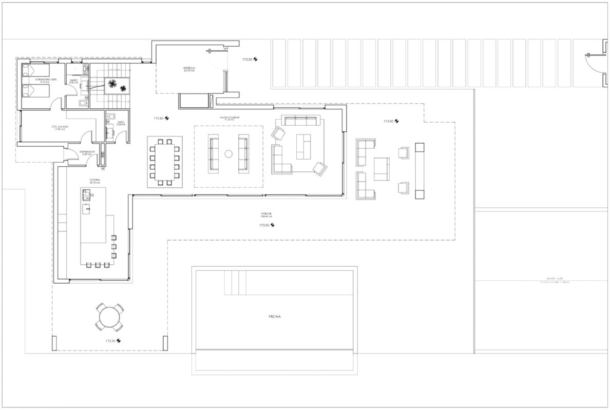
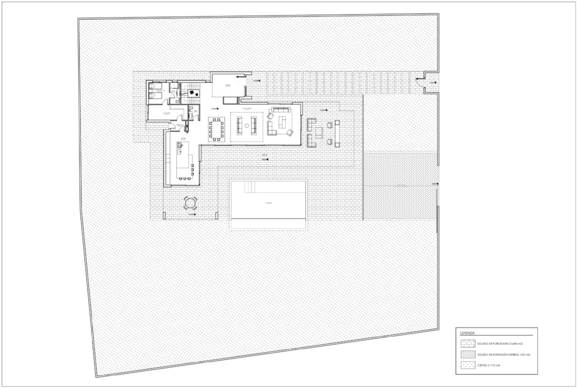
Begane grond: entree met trap, lift, en gastentoilet, een grote woon / eetkamer met een open volledig uitgeruste keuken met Bosch apparatuur of vergelijkbaar, slaapkamer met ensuite badkamer en wasruimte.
Vanuit de keuken heeft u toegang tot de terrassen en het verwarmde overloopzwembad.
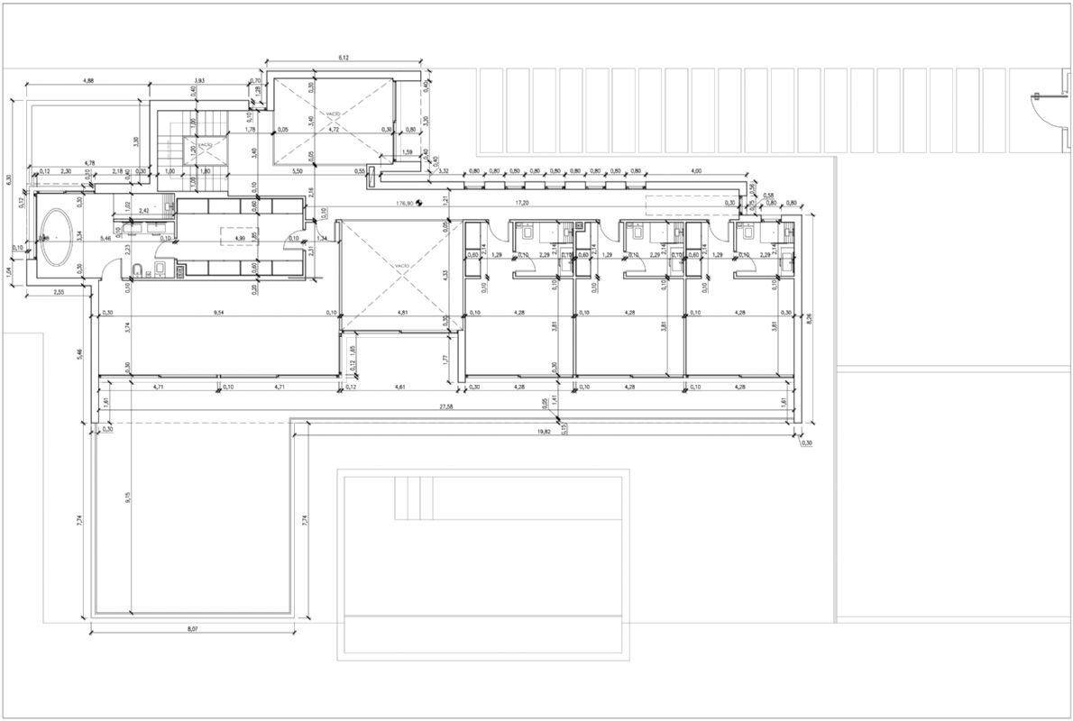
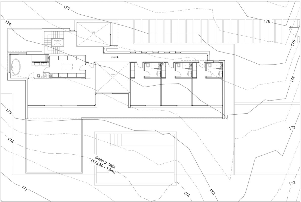
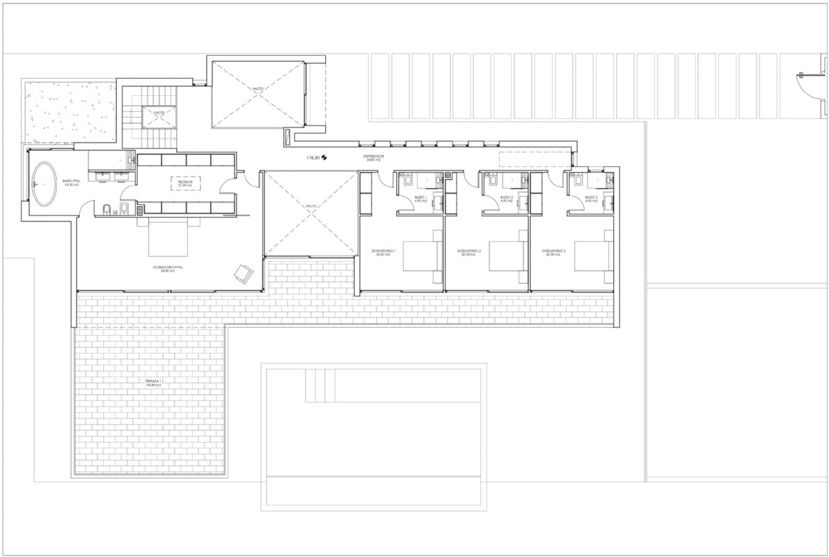
Eerste verdieping: Hoofdslaapkamer met en-suite badkamer met een grote kleedkamer en een eigen terras. Op deze verdieping hebben we ook nog 3 slaapkamers met ensuite badkamers en toegang tot het terras.
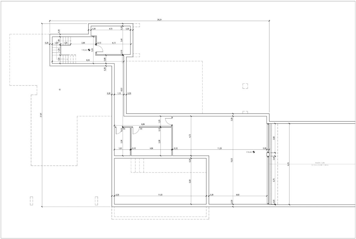
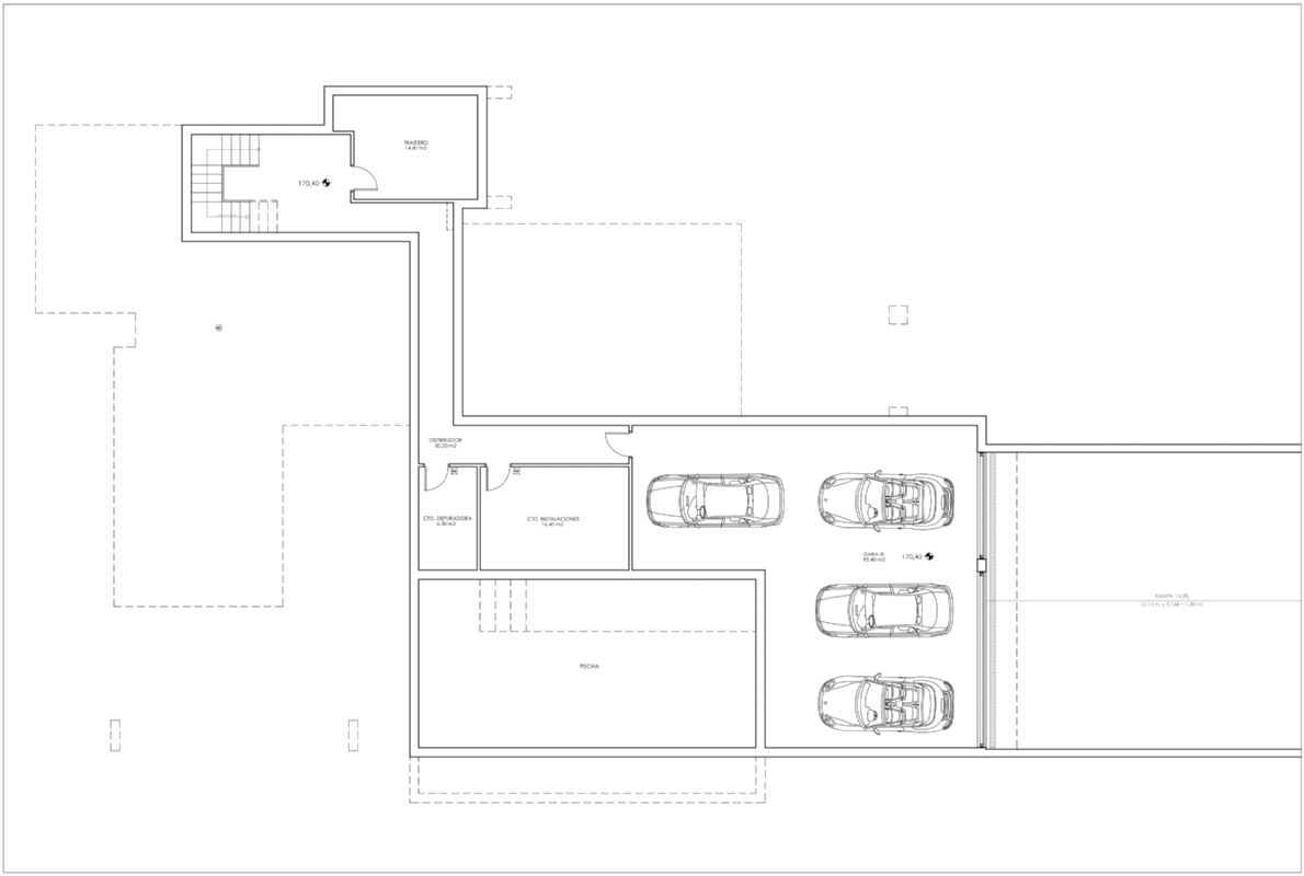
Kelder/garage; garage voor tenminste voor auto's en een technische ruimte.
FOTO'S VAN KEUKEN EN BADKAMERS ZIJN SLECHTS VOORBEELDEN VAN HOE HET ZOU KUNNEN ZIJN
Begane grond: entree met trap, lift, en gastentoilet, een grote woon / eetkamer met een open volledig uitgeruste keuken met Bosch apparatuur of vergelijkbaar, slaapkamer met ensuite badkamer en wasruimte.
Vanuit de keuken heeft u toegang tot de terrassen en het verwarmde overloopzwembad.
Eerste verdieping: Hoofdslaapkamer met en-suite badkamer met een grote kleedkamer en een eigen terras. Op deze verdieping hebben we ook nog 3 slaapkamers met ensuite badkamers en toegang tot het terras.
Kelder/garage; garage voor tenminste voor auto's en een technische ruimte.
FOTO'S VAN KEUKEN EN BADKAMERS ZIJN SLECHTS VOORBEELDEN VAN HOE HET ZOU KUNNEN ZIJN
Specificaties
- Investeringseigendom
- Verlaagde prijs
- Eerste lijn golf eigendom
- Terras
- Overdekt terras
- Solarium
- Lift
- Ingebouwde kleerkasten
- Inloopkast (Dressing)
- Badkamer en-suite
- Opslagruimte
- Wasruimte
- Kelder
- Dubbele beglazing
- Domotica
- Barbecue zone
- Toegang voor mindervaliden
Stijl
- Modern
- Hedendaags
- Luxueus
- Minimalistisch
- Industrieel
- Design
Conditie
- Uitstekende staat
Meubilair
- Ongemeubileerd
Keuken
- Volledig ingerichte keuken
Klimaatregeling
- Airconditioning warm
- Airconditioning koud
- Vloerverwarming
- Zonnepanelen
- Warmtepomp
- Open haard
Tuin
- Privé tuin
- Onderhoudsvriendelijke tuin
- Automatisch irrigatiesysteem
- Fruitbomen
Zwembad
- Prive verwarmd zwembad
- Jacuzzi
Parkeren
- Garage
- Garage met automatische poort
- Ondergronds parkeren
- Overdekt parkeren
- Openlucht parkeren
- Privé parkeerplaats
- Meerdere parkeerplaatsen
Veiligheid
- Omheind complex
- Omheind complex met automatische poort
- Bewakingscameras
- 24 uurs beveiliging
- Alarmsysteem
- Elektrische jaloezieën
- Kluis
- Deurtelefoon met video
Nutsvoorzieningen
- Elektriciteit
- Drinkbaar water
- Telefoon
- Internet
- Glasvezel (internet)
Oriëntatie
- Oost
- Zuidoost
- Zuid
- Zuidwest
- West
Dichtbij
- Dichtbij zee
- Dichtbij strand
- Dichtbij stad
- Dichtbij dorp
- Dichtbij haven
- Dichtbij jachthaven
- Dichtbij golf
- Dichtbij scholen
- Dichtbij de kerk
- Dichtbij winkels
- Dichtbij cafés
- Dichtbij restaurants
- Dichtbij fitnesscenter
Uitzicht
- Uitzicht op zee
- Uitzicht op de bergen
- Uitzicht op binnenland
- Golf uitzicht
- Panoramisch uitzicht
- Uitzicht op de tuin
- Uitzicht op het zwembad
- Uitzicht op straat



























