Villa de lujo sobre plano
-
LocalizaciónMijas Golf - Málaga
-
Precio1,399,500 €
-
ReferenciaVilla 013
-
Dormitorio4
-
Baño4
-
Aseo1
-
PiscinaSi
-
Tamaño de la construcción278 m2
-
Tamaño de la parcela1.500 m2
-
Tamaño de las terrazas305 m2
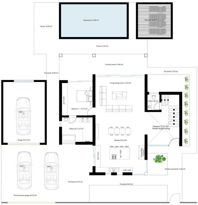
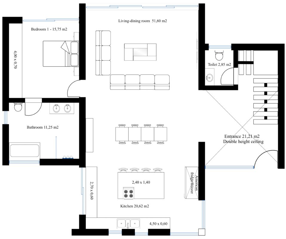
VILLA ECOLÓGICA CONTEMPORÁNEA DE LUJO - LLAVE EN MANO 1ª línea de golf en Mijas Golf y consta de;
Planta baja; hall de entrada con techo de doble altura, trastero y aseo de invitados, amplio salón/comedor con cocina abierta, dormitorio principal con baño en-suite, una terraza cubierta y una terraza, piscina, garaje y carport.
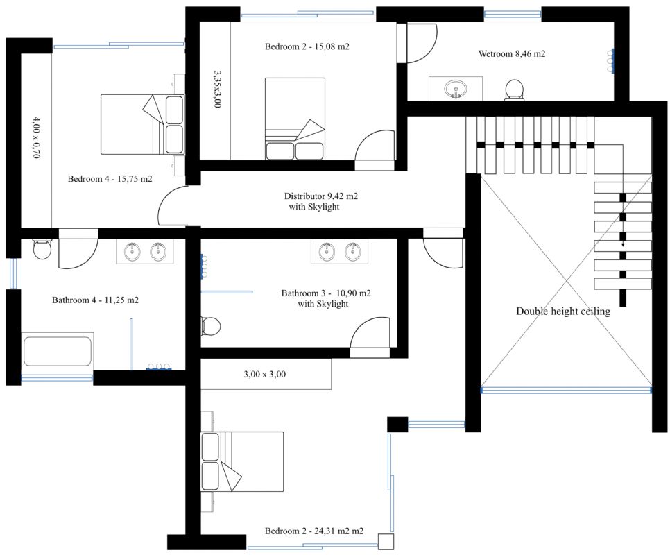
El primer piso; el aterrizaje conduce a 3 grandes dormitorios cada uno con baño en suite y una terraza privada.
¡El sótano es opcional!
Como construimos villas contemporáneas ecológicas a medida, los clientes pueden cambiar el diseño según sus preferencias o diseñamos gratuitamente una villa totalmente nueva con ellos.
¡Las medidas en el plano son superficies útiles!
- Ventanas con cristal Climalit 5+5/cámara/6+6
- Cocina totalmente equipada con electrodomésticos Bosch
- Suelo interior y exterior de Saloni
- Paredes del baño de Saloni
- Baños de Roca, Series the Gap o de Jacob Delafon
- Calefacción por suelo radiante de agua
- Puerta de entrada pivotante de techo alto y 1,50 m de ancho
- Puertas interiores invisibles de techo alto y 1,00 m de ancho
- y mucho más .....
Planta baja; hall de entrada con techo de doble altura, trastero y aseo de invitados, amplio salón/comedor con cocina abierta, dormitorio principal con baño en-suite, una terraza cubierta y una terraza, piscina, garaje y carport.
El primer piso; el aterrizaje conduce a 3 grandes dormitorios cada uno con baño en suite y una terraza privada.
¡El sótano es opcional!
Como construimos villas contemporáneas ecológicas a medida, los clientes pueden cambiar el diseño según sus preferencias o diseñamos gratuitamente una villa totalmente nueva con ellos.
¡Las medidas en el plano son superficies útiles!
- Ventanas con cristal Climalit 5+5/cámara/6+6
- Cocina totalmente equipada con electrodomésticos Bosch
- Suelo interior y exterior de Saloni
- Paredes del baño de Saloni
- Baños de Roca, Series the Gap o de Jacob Delafon
- Calefacción por suelo radiante de agua
- Puerta de entrada pivotante de techo alto y 1,50 m de ancho
- Puertas interiores invisibles de techo alto y 1,00 m de ancho
- y mucho más .....
Especificaciones
- Propiedad de inversión
- Propiedad en primera línea de golf
- Terraza
- Terraza cubierta
- Solárium
- Armarios empotrados
- Armario vestidor
- Baño en suite
- Trastero
- Doble acristalamiento
- Zona de barbacoa
- Acceso para minusválidos
Estilo
- Moderno
- Contemporáneo
- Lujo
- Minimalista
- Industrial
- Diseño
Muebles
- Sin muebles
Cocina
- Cocina amueblada y equipada
Control de climatización
- Aire acondicionado caliente
- Aire acondicionado frío
- Suelo radiante
- Paneles solares
- Bomba de calor
Jardín
- Jardín privado
- Jardín de mantenimiento fácil
- Sistema de irrigación automático
- Árboles frutales
Piscina
- Piscina privada climatizada
Aparcamiento
- Aparcamiento cubierto
- Aparcamiento exterior
- Aparcamiento privado
- Múltiples plazas de aparcamiento
Seguridad
- Sistema de alarma
- Caja fuerte
- Timbre con teléfono y vídeo
Servicios públicos
- Electricidad
- Agua potable
- Teléfono
- Internet
- Fibra Óptica
Orientación
- Este
- Sureste
- Sur
Cerca de
- Cerca del mar
- Cerca de la playa
- Cerca de la ciudad
- Cerca del pueblo
- Cerca del golf
- Cerca de transporte público
- Cerca del aeropuerto
- Cerca de las escuelas
- Cerca de la iglesia
- Cerca de las tiendas
- Cerca de bares
- Cerca de restaurantes
- Cerca del gimnasio
Vistas
- Vistas a la montaña
- Vistas al golf
- Vistas panorámicas
- Vistas al jardín
- Vistas a la piscina









